Concepteur d’équipement sportif clé-en-main Périgueux en Dordogne

Contactez-nous
Les champs indiqués par un astérisque (*) sont obligatoires
Aménagements Urbains
Dev. durable & Aménagements Paysagers
Voiries & Réseaux Divers
Infrastructures Sportives
Travaux spéciaux
Intégration et permis d'aménager zone artisanale et commerciale

Création d'une zone artisanale et commerciale - Maitre d'œuvre VRD à Limoges en Haute-Vienne

TEC.INFRA a conçu et élaborer les plans et cahier des charges techniques des VRD, en vue de la construction d'une zone artisanale et commerciale (bâtiments professionnels) à Couzeix près de Limoges en Haute-Vienne.
En savoir plus
Réalisation d’un complexe sportif à Saint Nauphary

Conception et construction d’un complexe sportif de football à St NAUPHARY en Tarn et Garonne

Un complexe sportif tout neuf à St Nauphary; TEC.INFRA a réalisé la mission de maitrise d'œuvre pour la construction d'un complexe sportif en Tarn et Garonne. Cette plaine des sports est composée de 3 terrains de grands jeux (football et rugby), 1 bâtiments vestiaires et club-house et terrains de pétanque.
En savoir plus
Spécialiste aménagements paysagers agréés sportif et parcours de santé et VRD Dordogne Périgord

Etudes d'aménagements paysagers agrées sportifs verdissement parcours de santé, de loisirs et VRD à Périgueux en Dordogne

TEC.INFRA, expert en aménagements paysagers et VRD, accompagne collectivités et investisseurs privés dans des projets éco-responsables, combinant esthétisme, durabilité et fonctionnalité, en milieux urbains et ruraux, avec des solutions sur mesure et partenaires spécialisés.
En savoir plus

Nos prestations sur le secteur de Périgueux en Dordogne

Rénovation de terrains de tennis à Haute Goulaine

Etudes et travaux de rénovation de deux terrains de tennis en résine et leurs équipements tennistiques à Haute-Goulaine en Loire-Atlantique

Etudes et rénovation complète et reconstruction de courts de tennis, réalisés et pilotés par TEC.INFRA en Loire-Atlantique. Une conception sur mesure et un suivi des travaux assidu.
En savoir plus
TEC.INFRA, bureau d’études français spécialisé en VRD, sports et génie civil, propose des solutions d’ingénierie innovantes pour projets internationaux exigeants et durables.

TEC.INFRA, bureau d’études français spécialisé en VRD, sports et génie civil, propose des solutions d’ingénierie innovantes pour projets internationaux exigeants et durables.

TEC.INFRA, bureau d’études français, propose consulting, conception et suivi de projets VRD, génie civil et terrains de sport, intervenant en France, DROM-COM et international, avec expertise technique et engagement durable.
En savoir plus

Notre zone d'activité pour ce service Concepteur d’équipement sportif clé-en-main

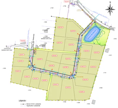
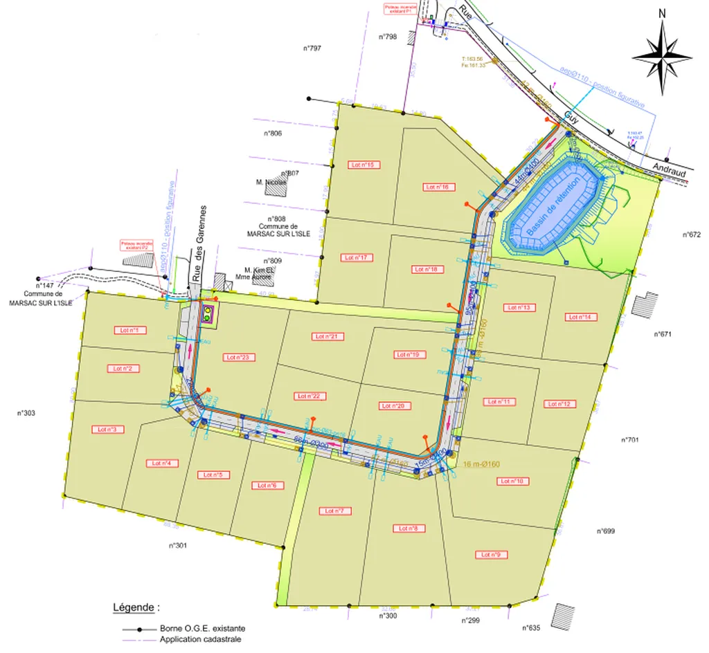
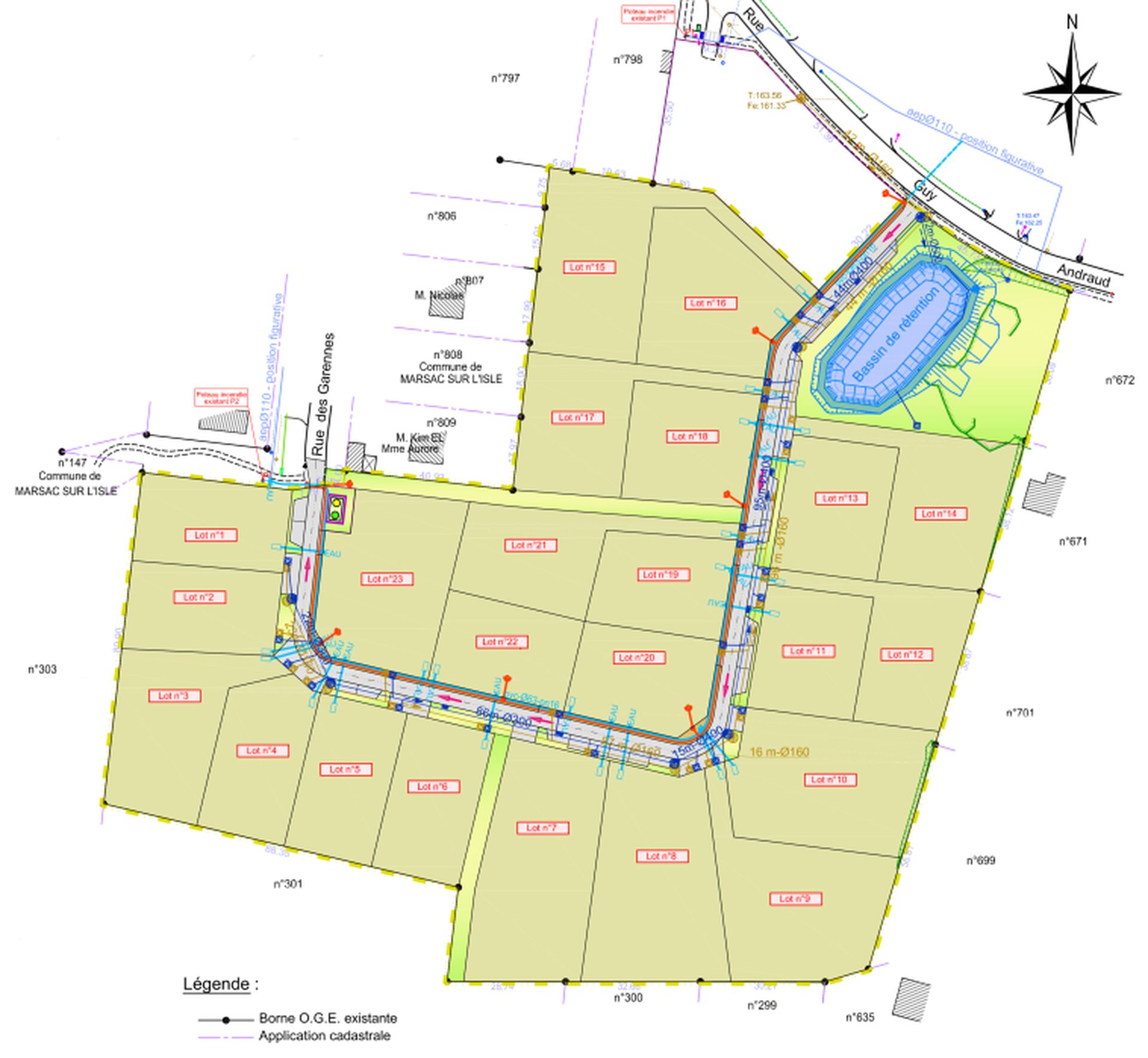
Plan de lotissement construction et viabilisation parcelle Dordogne

Etudes construction et viabilisation d’un lotissement pour lots à bâtir à Marsac sur l'Isle en Dordogne

TEC.INFRA a piloté la construction d'un lotissement de 23 lots, de la conception à la coordination technique VRD. Plans validés par les concessionnaires, gestion des eaux pluviales (Loi sur l’Eau), insertion paysagère, containers enterrés, tests réseaux : chaque détail a été maîtrisé. TEC.INFRA, votre partenaire VRD en Nouvelle-Aquitaine et Occitanie.
En savoir plus

Vous recherchez un expert en ingénierie sportive sur Périgueux en Dordogne ? Le bureau d’étude TEC INFRA vous fait profiter de son expertise pour vous accompagner dans la conception et l’aménagement de vos complexes sportifs. 

Que vous soyez une collectivité ou acteur privé, confiez votre projet de création d’équipement sportif à un bureau d’étude qui saura vous accompagner tout au long de votre projet. Vous pourrez ainsi profiter d’un accompagnement adapté pour : 

  • La création d’équipement sportif et de loisir
  • Conception et l’aménagement de stade et terrain de sport,  centre d'entraînement, gymnases, courts de tennis, aires de jeux ou encore terrains multisport  
  • Rénovation et réaménagement de vos aménagements sportifs et récréatifs existants
  • Etc.

 

Contactez sans plus attendre TEC INFRA pour obtenir des informations complémentaires sur ses différentes activités de bureau d’études et de maîtrise d'œuvre en ingénierie sportive en Gironde et dans le Grand Ouest

{
Tec Infra c'est
en chiffres
0

années d'expérience

0

collaborateurs

0

opérations en cours d'études

0

opérations en cours de travaux

Inscrivez-vous à la newsletter
Je souhaite recevoir les actualités, conseils et offres exclusives de TEC.INFRA, et j’accepte la Politique de confidentialité.