Aménagements urbains et VRD Dordogne bureau d'Etudes alt="Aménagements urbains et VRD Dordogne bureau d'Etudes"/>
Aménagements urbains
/

Bureau d'étude en aménagement urbains et urbanisme à Bordeaux, Toulouse et Périgueux

Réalisation et suivi des projets urbains en Nouvelle Aquitaine

Maître d’Œuvre pour l’aménagement voiries réseaux et plantations de la place du 14 juillet à St Astier, Dordogne

TEC.INFRA mène la maîtrise d’œuvre pour l’aménagement de la place du 14 juillet à Saint-Astier (Dordogne). Ce projet d...
Pavés calcaire drainant à ergo joints gravillonnés

Assistant à Maitrise d'Ouvrage et prestations intellectuelles pour les travaux publics et de VRD

TEC.INFRA, bureau d’études basé en Dordogne, accompagne vos projets de travaux publics et VRD avec réactivité, exper...
AMO travaux de terrassements et travaux publics
09 81 99 01 80
Contactez-nous

Notre bureau d'études en aménagements urbains est connu pour sa réactivité et sa méthodologie rigoureuse. Nous commençons chaque projet par un diagnostic minutieux pour comprendre vos besoins et vos objectifs. Notre équipe de professionnels travaille en concertation avec vous pour élaborer un programme personnalisé qui répond à vos attentes.

Nous sommes engagés à offrir une qualité supérieure tout au long de la construction et de l'exécution des chantiers.

Nous sommes fiers de nos valeurs et de notre engagement, pour toujours tenter d'obtenir la satisfaction de nos clients.

 

TEC.INFRA, votre meilleur partenaire pour vos projets d'aménagements urbains et VRD

 

Contactez-nous pour discuter de votre projet et découvrir comment nous pouvons vous aider à réaliser vos objectifs en matière d'aménagements urbains.

 

Our urban development engineering office is renowned for its responsiveness and rigorous methodology. We begin each project with a thorough assessment to understand your needs and objectives. Our team of professionals works closely with you to develop a tailored program that meets your expectations.

We are committed to delivering superior quality throughout the construction and execution phases of every project.

We take pride in our values and dedication, always striving to achieve the satisfaction of our clients.

TEC.INFRA, your trusted partner for urban development and infrastructure projects.

Contact us to discuss your project and discover how we can help you achieve your urban development goals.

Nous écrire
Les champs indiqués par un astérisque (*) sont obligatoires
Création et rénovation de camping et aires de loisirs

Aménagement de campings et aires de loisirs en Nouvelle Aquitaine Occitanie ou Auvergne: faites équipe avec TEC.INFRA

Spécialiste en conception d'espaces touristiques, TEC.INFRA guide les gestionnaires de campings et bases de loisirs dans leurs projets d’aménagement, de modernisation ou d’agrandissement. De l’étude technique à la livraison, nous garantissons une approche écoresponsable, fluide et optimisée. Présents sur toute la façade Atlantique, nous offrons des solutions sur mesure, fiables et attractives pour valoriser durablement vos infrastructures touristiques.
Consultant technique et maitre d'œuvre pour travaux spéciaux et mur anti-bruita

Etudes de conception et suivi des travaux de réalisation d'un écran acoustique près de La Rochelle en Charente Maritime

La DREAL Nouvelle-Aquitaine a confié à TEC.INFRA la maîtrise d’œuvre pour un écran acoustique de 6m de haut sur 330m dans l'enceinte de la gendarmerie de Lagord (Charente-Maritime). Ce projet assure un confort sonore optimal grâce à des solutions durables, intégrées avec expertise en génie civil, écologie et innovation, soutenues par partenaires qualifiés.
Aménagement du bourg et monument aux morts

Maitre d'oeuvre réflexion et suivi des travaux d'exécution du réaménagement urbain patrimoniale à Léguillac de l’Auche en Dordogne - TEC.INFRA

L'opération de réhabilitation du bourg de Léguillac de l'Auche près de Périgueux en Dordogne, pour laquelle TEC.INFRA a mené la mission de maitre d'œuvre et coordonner de chantier. Pour toute prise de rendez vous contactez nous au 05 40 25 28 73.
Fresque artistique sur mur maçonné patrimoine culturel neuvic sur l'isle

Maître d'œuvre du réaménagement urbain et patrimonial à Neuvic sur l'Isle, Dordogne

À Neuvic sur l’Isle, TEC.INFRA, bureau d'études VRD en Dordogne, a piloté le réaménagement du passage de l’Écluse. Un projet alliant savoir-faire technique, intégration paysagère, fresque artistique et respect du patrimoine local. Un bel exemple d’aménagement urbain réussi au cœur du Périgord, en collaboration avec les entreprise locales.
Trottoirs poreux et infiltrants revêtement perméable

Consultant technique de la rénovation urbaine de l'Avenue Clémenceau à ST ASTIER et sa voie douce

Réhabilitation et aménagement urbain durable; TEC.INFRA spécialiste voiries et réseaux divers vous présente les travaux réalisés sur l'avenue Clémenceau à St Astier (dés imperméabilisation des sols, mise en sécurité, plantations, espaces verts, voie cyclable, etc...).
Cartographie études urbaine Dordogne VRD

Etudes préalables et faisabilité urbaines - Requalification du centre bourg à St Astier en Dordogne

Le groupement TEC.INFRA, Frédéric Ney urbaniste et Émilie Chagnon paysagiste a mène la faisabilité de requalification du bourg de St Astier (Dordogne). Cette étude ambitieuse a intégré enjeux environnementaux, sociaux, scolaires et économiques. Elle valorise mobilité, espaces verts, patrimoine, dynamisme commercial et convivialité, avec une forte concertation locale. Le projet vise à renforcer l’identité urbaine et la qualité de vie.
Maitre d'œuvre en VRD et travaux publics

Définition, missions et rôle d'un maitre d'œuvre pour vos travaux VRD et accompagnement pour projet de lotissement

Maîtres d’œuvre VRD passionnés, nous orchestrons vos projets d’infrastructures et d’aires de jeux, de l’avant-projet à la réception finale. Coordination, délais, budget, sécurité, environnement : rien n’est laissé au hasard. Présents en Nouvelle-Aquitaine, Occitanie et au-delà, nous assurons un suivi rigoureux, des solutions sur mesure et une exécution fluide. Construisons ensemble des espaces durables, fonctionnels… et bien pensés !
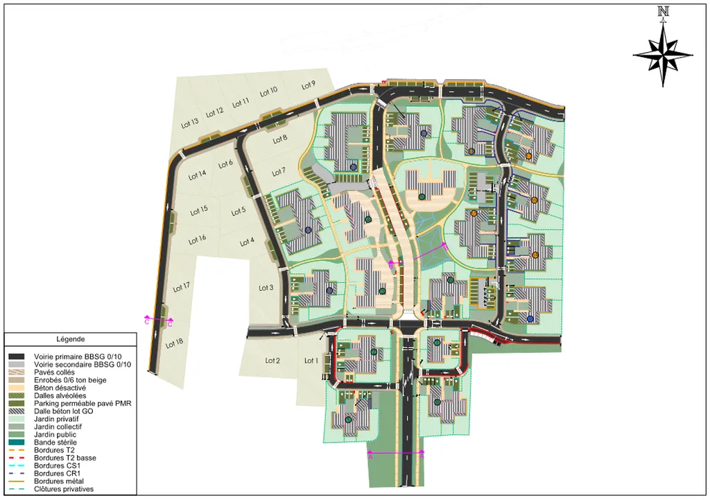
Plan aménagements urbains construction logements et VRD

Maitre d'œuvre VRD études BIM pour DOMOFRANCE à Chancelade en Dordogne

Projet de construction de 150 logements à Chancelade en Dordogne. TEC.INFRA assure la mission de maitre d'œuvre VRD pour les aménagements parallèles de ce projet d'espaces publics et privés. La conception de cette opération a été menée en BIM (Building Information Modeling).
L’aménagement urbain des voies de bus BHNS voirie réseaux

Suivi des travaux d'aménagement des voies de bus, pour la réalisation du BHNS à Périgueux

TEC.INFRA assure depuis 2017 le suivi des travaux de la maîtrise d’œuvre pour le tracé de Bus à Haut Niveau de Service (BHNS) du Grand Périgueux, incluant direction de chantier, coordination VRD/SLT, et gestion des avancements. L’objectif : garantir sécurité, conformité et respect environnemental. Finitions du dernier tronçon en juillet 2023.
Réhabilitation des voiries et trottoirs à Périgueux avec giratoire et voie douce vélo

Consultant VRD des aménagements urbains à Périgueux en Dordogne : travaux sur la voirie des boulevards par un bureau d'étude spécialisé

TEC.INFRA a assisté la Ville de Périgueux dans le réaménagement des boulevards (2018-2020), en pilotant les travaux VRD : assainissements, voirie, trottoirs, mobiliers urbains et accessibilité. Les interventions ont été réalisées en plusieurs phases, avec une attention portée aux riverains et à l’identité locale. Un aménagement urbain fonctionnel, sécurisé et esthétiquement intégré.
{
Tec Infra c'est
en chiffres
0

années d'expérience

0

collaborateurs

0

opérations en cours d'études

0

opérations en cours de travaux

Inscrivez-vous à la newsletter
Je souhaite recevoir les actualités, conseils et offres exclusives de TEC.INFRA, et j’accepte la Politique de confidentialité.