1. Accueil
  2. Ingénierie V.R.D
  3. Aménagements urbains
  4. Maitre d'œuvre VRD études BIM pour DOMOFRANCE à Chancelade en Dordogne
Retour
/
Aménagements urbains

Maitre d'œuvre VRD études BIM pour DOMOFRANCE à Chancelade en Dordogne

Partager :

Un projet de lotissement VRD d’envergure conçu en BIM par TEC INFRA en Nouvelle -Aquitaine

Une maîtrise d’œuvre VRD experte pour un aménagement moderne et performant

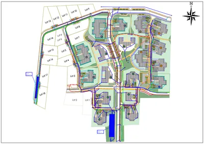
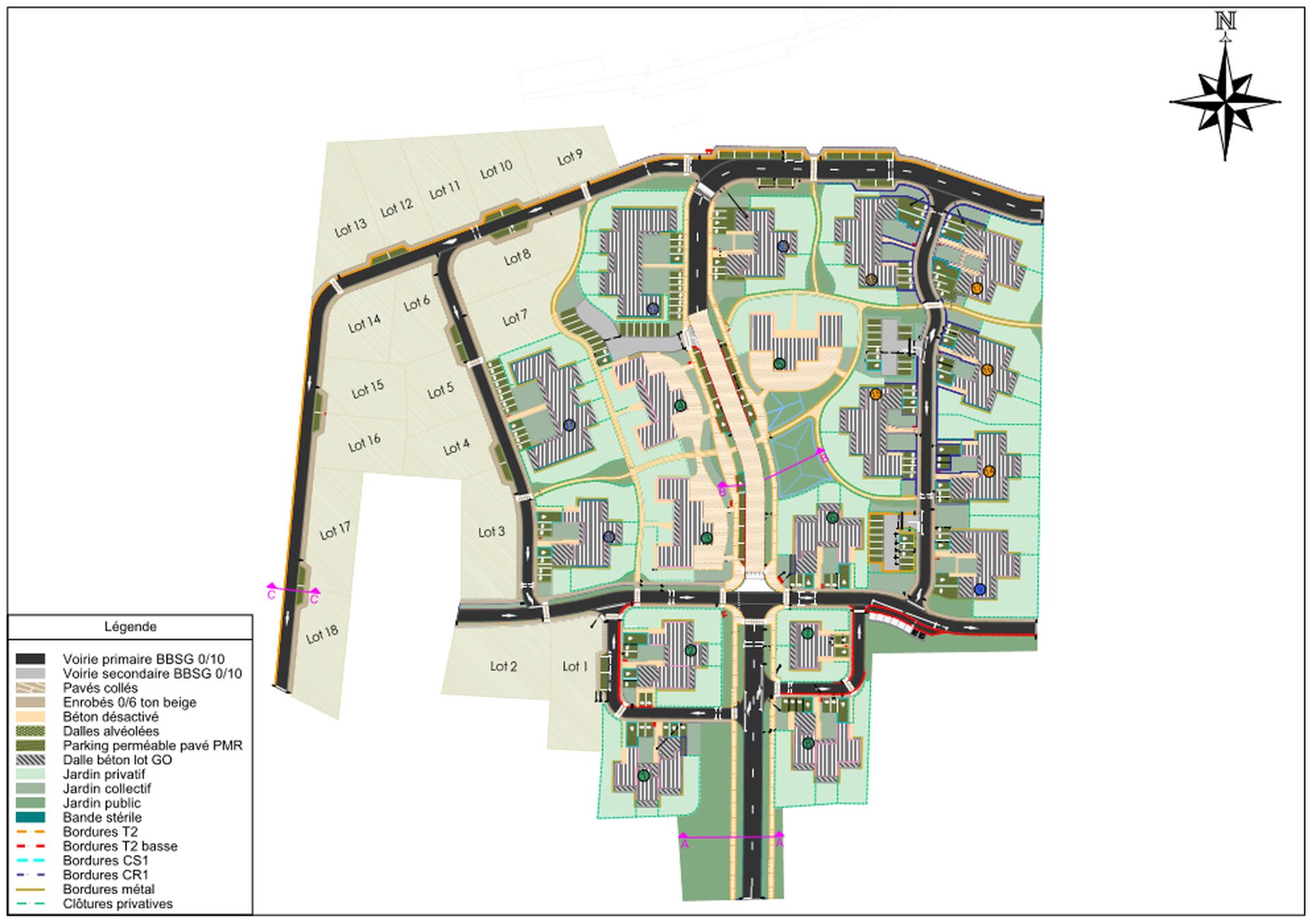
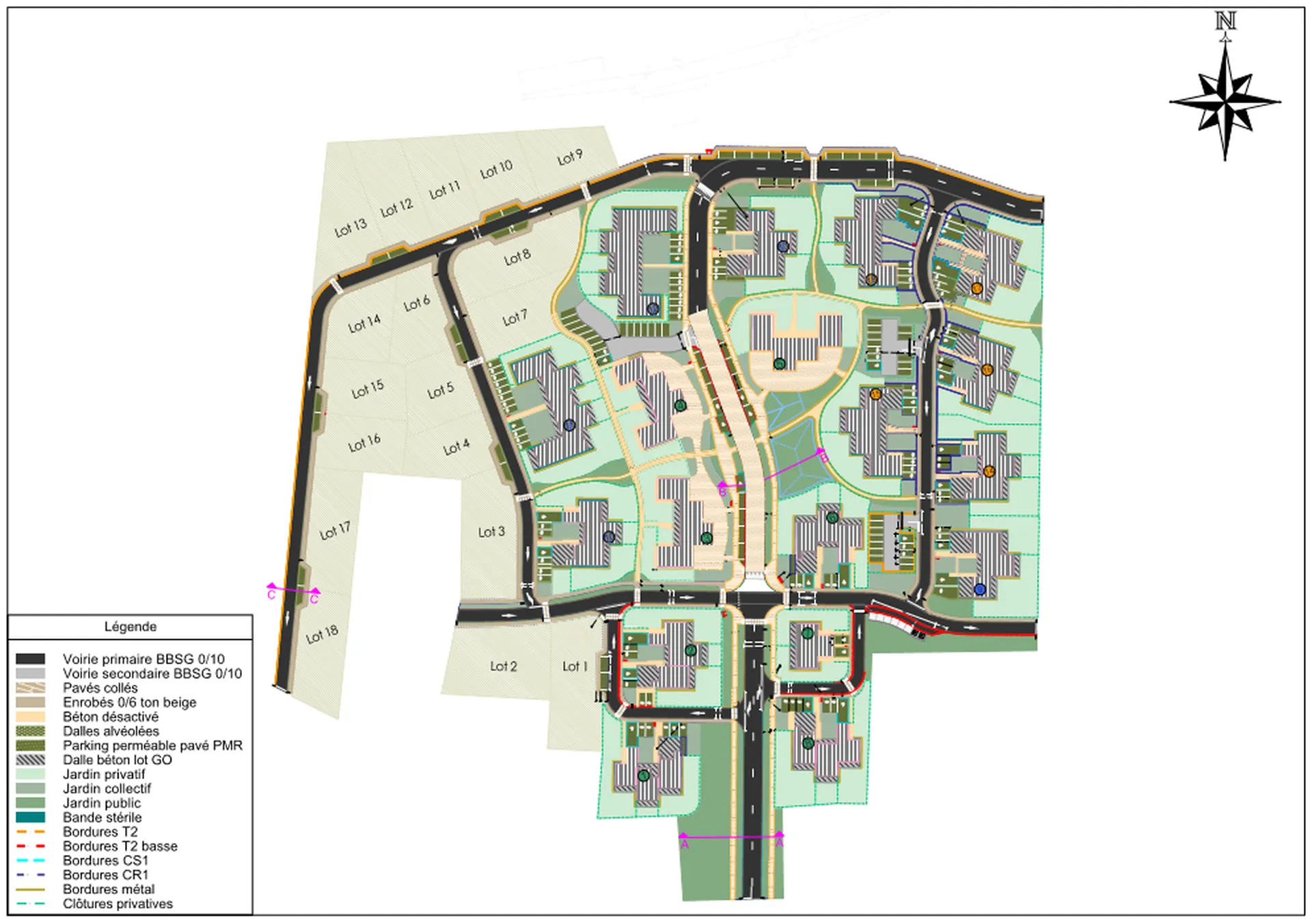
Le maître d’œuvre TEC INFRA, basé en Dordogne, pilote la conception VRD du vaste projet de lotissement de Chercuzac à Chancelade, pour le compte de DOMOFRANCE. En collaboration avec les bureaux d’études INTECH, WORKS et sous l’effigie de Schurdi-Levraud Architecte, TEC INFRA a conçu une opération VRD mixte intégrant 150 logements, 11 locaux de services de proximité, ainsi que 18 lots destinés à l’accession à la propriété.
La conception BIM a permis d’établir une maquette 3D complète, véritable support de coordination pour l’ensemble des intervenants, facilitant l’intégration des réseaux, la gestion des interfaces et la prévention des conflits techniques. Ce mode de conception garantit une meilleure anticipation des contraintes, un confort accru pour les futurs habitants et une sécurité optimale sur l’ensemble du lotissement.

Le BIM : interopérabilité, coordination et pilotage précis des réseaux

La démarche BIM, associée à la plateforme numérique Kroqui, apporte une interopérabilité exemplaire entre les bureaux d’études et les entreprises. Grâce à elle, les données VRD, réseaux secs, gestion des eaux pluviales, assainissement ou voiries sont partagées instantanément, sécurisant les choix techniques et éliminant les doublons.
La charte graphique BIM facilite le classement des documents et garantit la lisibilité globale du projet. Elle permet également une visualisation en temps réel de l’avancement des travaux, essentielle pour un pilotage réactif et une prise de décision rapide, en parfaite cohérence avec les attentes du maître d’ouvrage.

TEC INFRA : coordination VRD, gestion des réseaux et conception durable du lotissement

Une coordination rigoureuse des réseaux, voiries et interfaces de chantier

Acteur majeur de la maîtrise d’œuvre VRD à Bordeaux en Gironde, Agen en Lot-et-Garonne et Périgueux en Dordogne, TEC INFRA coordonne l’ensemble des prestations du lot VRD : terrassements, empierrements, réseaux secs, assainissement, revêtements, signalisation, mobiliers et gestion des espaces verts.
Un soin particulier est apporté au phasage des travaux, garantissant une progression harmonieuse du chantier et la maîtrise des impacts sur l’environnement et les riverains. Les accès provisoires, notamment l’organisation des flux via la RD710 selon les préconisations du Département 24, assurent la sécurité des ouvriers et la fluidité des approvisionnements.

Pilotage global du lotissement : gestion eaux pluviales, raccordements et relation habitants

Le projet intègre également la création d’une zone dédiée à la collecte des déchets, définie en lien avec le SMD3, ainsi qu’une coordination poussée avec les concessionnaires des différents réseaux. Plusieurs réunions techniques ont été nécessaires pour valider les raccordements, anticiper les contraintes et intégrer les préconisations du service instructeur.
TEC INFRA veille également à maintenir une relation de proximité avec les habitants de Chancelade, afin de limiter les perturbations et de garantir un cadre de chantier apaisé et cohérent. Notre rôle consiste aussi à assurer l’équilibre des mouvements de terre, la connexion du maillage voiries, la cohérence des altimétries et le respect du patrimoine paysager immédiat.
La conception BIM, combinée à une maîtrise d’œuvre VRD solide, offre ainsi une coordination fluide, une lecture globale du site et une gestion précise de la gestion des eaux pluviales, des réseaux et du pilotage du lotissement.

Plan aménagements urbains construction logements et VRD
Nous écrire
Les champs indiqués par un astérisque (*) sont obligatoires
À découvrir
Projet d'études VRD BIM et maquette IFC

Maîtrise d’oeuvre VRD – projets BIM en Nouvelle Aquitaine et Occitanie

Voici nos capacités à pouvoir vous accompagner sur un projet VRD conçu en BIM (Building Information Modeling), et nos compétences de maitre d'œuvre spécialisé en Voiries et Réseaux Divers, particulièrement en Nouvelle Aquitaine, Occitanie, Auvergne et potentiellement sur l'ensemble du territoire français en distanciel.
Construction de logements collectifs à TERRASSON

Construction de 25 logements collectifs sur la commune de TERRASSON en Dordogne

Maîtrise d’œuvre VRD à Terrasson (24) : TEC INFRA a piloté la viabilisation complète de 25 lots pour Dordogne Habitat, incluant voiries, réseaux divers, eaux pluviales, coordination inter-lots et contraintes techniques. Une mission exigeante menée avec rigueur, respect des délais et qualité. Merci à Dordogne Habitat pour leur confiance sur ce projet structurant en Dordogne.
Aménagements durables - Coefficient de BIOTOPE - Préservation de la biodiversité

Aménagements durables - Coefficient de BIOTOPE - Préservation de la biodiversité

Le Coefficient de Biotope (CBS) évalue la qualité écologique d’un territoire en mesurant la proportion de surfaces favorables à la biodiversité. Il est utilisé dans les projets urbains pour préserver l'environnement, améliorer le climat, gérer les eaux pluviales et encourager la renaturation des espaces urbains.
{
Tec Infra c'est
en chiffres
0

années d'expérience

0

collaborateurs

0

opérations en cours d'études

0

opérations en cours de travaux

Inscrivez-vous à la newsletter
Je souhaite recevoir les actualités, conseils et offres exclusives de TEC.INFRA, et j’accepte la Politique de confidentialité.